티스토리 뷰
2019년 9월 14일 국토교통부에서 "필로티 건축물 구조설계 가이드라인"을 발간했습니다.
원룸형 상가나 도시형 생활주거시설처럼 필로티구조로 지어지는 건물들은 필로티층에 대해서는 건축구조기술사가 구조감리로 협력하도록 법이 개정되어서 많은 부분이 개선되고 건실하게 시공되고 있습니다.
그런데도 아직 일부 시공업체에서는 강화된 내용을 모르고 시공하는 경우가 더러 있습니다.
이러면 건축구조기술사가 현장지도 방문시 재시공을 지시하게 되는데요.
현장에서는 재시공에 따른 시간적 비용적 손실이 발생하게 되므로 착공전 꼼꼼하고 주의깊게 시공계획하시어 정상시공하시기 바랍니다.
이번 내용은 필로티구조 시공업체 현장대리인과 작업반장, 설계를 총괄하는 건축사사무소, 현장품질을 관리하는 감리자에게 조금이나마 도움이 되길 바라는 마음으로 요약정리해 봅니다.
시공오류가 빈번한 5가지만 설명드겠습니다.
기타 다른 사항들도 국토교통부 정책자료를 링크하오니, 다운받아 확인하시기 바랍니다.
1. 기둥배근
지진시 필로티구조에서 기둥에는 휨모멘트 뿐만 아니라 횡비틀림모멘트도 함께 발생합니다.
일반적인 모멘트골조에서처럼 후프를 기둥 상하부만 촘촘히 배치했을 때, 필로티구조에서는 중앙부가 비틀림에 상당히 취약해 집니다.
후프와 연결철물은 지진시 기둥에 작용하는 비틀림모멘트를 전단저항하는 역할, 심부콘크리트가 파괴되는 것을 막아주는 역할, 콘크리트 파괴 후에는 주근의 좌굴파괴를 촤소화시키는 역할 등등을 하므로 주근만큼 중요한 요소입니다. 따라서 기둥 전체 길이에 걸쳐 균등하고 촘촘하게 설치되어야 합니다.

- 주근의 겹침이음은 철근직경의 50배 이상으로 할 것.
- 연결철근 수직간격은 후프 수직간격과 동일하게 하고, 기둥 전체에 걸쳐 150mm이내로서 구조계산서에 따를 것.
- 후프 양끝은 135도 갈고리를 사용하여 기둥내부에 정착시키고, 수직방향으로 엇갈려서 배치할 것.
- 연결철근은 시공성을 감안해 한쪽 90도 다른 한쪽은 135도 갈고리를 허용하는데,
90도 갈고리는 수직적으로 동일한 위치에 있으면 지진시 풀릴 수 있으므로 수직방향으로 엇갈려서 배치할 것.
- 기둥 상하부 기초와 보 접합부영역까지 후프와 연결철근을 배치하고,
시공성을 감안하여 이 접합부 영역에서 만큼은 90도 갈고리를 갖는 후프를 사용할 수 있으나,
이때 지진시 풀림을 방지하기 위하여 90도 갈고리는 건물내면에 위치하도록 할 것.

- 주근 겹침상세는 하부철근 절곡이음, 상부철근 절곡이음, 절곡없는 이음 중 선택하고,
상하 이음철근은 콘크리트면과 나란하지 않게 앞뒤로 배치할 것.
(아무리 이형철근이라도 콘크리트와는 이질재이기 때문에 콘크리트 자체강도보다 이질접합면에서의 부착응력이 작아서 지진시 피복콘크리트는 쉽게 떨어져 나갈 수 있음. 이 피복콘크리트가 큰 충격에도 균열되거나 탈락하지 않는다면
기둥의 저항능력에 크게 기여할 수 있으므로 이음부위를 심부방향 앞뒤로 배치함.
또한 HD25 이상인 철근은 현장에서 1/6경사 절곡이 많이 힘들기 때문에 절곡없는 이음으로서 기초배근시
미리 기둥 하부철근 위치를 기둥 안쪽으로 밀어서 배치해 놓는 것이 시공성 측면에서 유리함.)




2. 전이보배근
필로티구조에서 보는 필로티 층의 기둥과 마찬가지로 상부벽체의 하중을 하부구조로 전이시키는 부재로서 특별지진하중이 고려되므로 일반적인 모멘트골조보다 엄격한 철근상세가 요구됩니다.

- 횡철근 간격은 200mm이내이고 기둥 접합부 주변에서는 150mm이내로서 구조계산서에 따를 것.
- 스트럽은 양단 모두 135도 갈고리를 갖는 U형으로 하고, 상부 연결철근 캡은 양단 각각 135도-90도로 하며,
지진시 풀림을 방지하기 위하여 연결철근의 양단 중 135도는 보 길이방향으로 서로 교대배치할 것.
(테두리보에서의 연결철물은 건물 외측에만 135도 갈고리를 배치하면 풀림방지 효과가 더 높아짐)


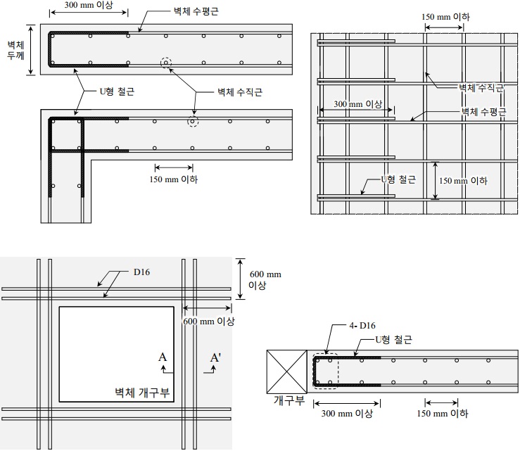
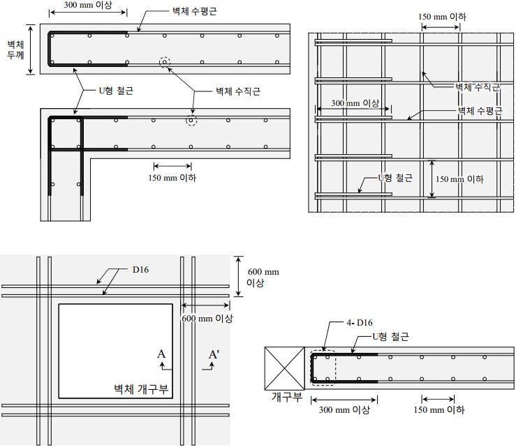
3. 필로티층의 벽체배근
필로티구조에서 필로티층의 벽체는 지진에 의한 과대한 밑면전단력에 저항하는 전단저항요소로서의 역할 등을 합니다.
이 벽체를 적정한 위치에·길이·두께로 반영하면 전단력이 작용하는 중심과 이에 저항하는 강심을 조절하여 그 이격차이를 줄임으로서 건물에 작용하는 건물 전체의 횡비틀림모멘트를 줄여주는 효과도 발휘할 수 있습니다.
벽체의 단부나 코너부, 개구부 주변을 경계요소라고 하는데, 지진시 벽체가 전단저항하는 힘이 워낙 커서 이 경계요소 취약부에서 응력이 집중되어 파괴될 가능성이 큽니다.
벽체의 면외 휨거동에 저항하는 수직근과, 면내전단력에 저항하는 수평근 뿐만 아니라, 취약 경계요소에서의 아래와 같은 보강상세도 중요합니다.

- 벽체의 수직철근과 수직철근은 HD13으로 150mm이하로 하게되어 있으나,
건축구조기술사가 구조계산한 경우에는 구조계산서에 따라 시공할 것.
- 개구부 주위에는 HD16 이상 철근을 양면에 각각 2개 이상 배치하고,
개구부 모서리에서 각각 600mm이상 연장하여 정착시켜야 함.


4. 화단벽 및 수벽을 기둥에서 이격
수벽 등이 기둥에 접하면 기둥에 단주효과가 발생합니다.
단주가 장주보다 강성은 높지만, 필로티층에서의 지진저항 수직부재들은 동일한 층변위를 가지므로, 결국 단주에서 기타 부재들보다 더 큰 변위각이 발생하면서 X자 균열이 발생하면서 먼저 파괴하게 됩니다.
이후 이 부재가 분담하는 하중이 다른 부재들로 가중되고, 그 부재들의 여유력이 부족하면 순차적으로 취약한 부재들부터 연속파괴되면서 건물전체의 붕괴가 발생할 수 있습니다.

- 기둥의 단주효과를 유발할 수 있는 수벽, 화단옹벽, 조적벽 등 비구조요소를 기둥에서 이격시키거나, 설치를 지양함.
5. 배관공간은 별도설치
아직도 이런 현장 있을까요?
기둥이나 벽체 내에 배관을 매설하면 그 면적만큼 일상시에서 축하중 저항력이 줄어듭니다.
그런데 더 큰 문제는 지진이 발생할 때, 기둥이나 벽체가 비틀리면서 비틀림전단응력이 취약부위에서 콘크리트 균열을 유발합니다.
내부에 배관이 없는 정상적인 상태라면 피복콘크리트 외면에 균열이 먼저 발생하고, 지진력이 좀더 커서 비틀림전단응력이 증가하여 피복콘크리트와 철근과의 부착응력보다 커지면 피복이 탈락하고, 지진력이 좀더 커지면 주근에 변형이 발생하지만 촘촘한 후프가 큰 변형을 단속하고, 지진력이 더욱더 커지면 심부콘크리트에 균열이 발생하여도 심부콘크리트에 갈고리로 구속정착된 후프가 심부 콘크리트 단면적 감소를 저지하며 버텨낼 수 있습니다.
촘촘한 후프로 구속되고 속이 꽉찬 심부콘크리트 압축강도는 일반적인 콘크리트 압축강도보다 더 큰 응력을 발휘하는데, 이 이상적인 3축응력 상태인 경우일 때 압축력이 작용하는 방향에 수직한 두방향의 인장변형에 후프철근의 스프링계수를 곱한 값으로 작용하는 구속압력의 약 4.1배가 원래의 압축강도에 가산되어 큰 저향능력을 발휘하고 기둥은 더 큰 연성능력을 갖게 됩니다.
그런데 이 심부콘크리트 내에 배관을 몰래 설치한다면, 압축강도 증진을 기대할 수도 없거니와 피복콘크리트 균열시 심부 배관 주변에서 먼저 심각한 균열파괴가 발생할 수 있습니다.

- 전이보 등 수평 구조부재의 내부 또는 관통하여 건축마감, 설비, 배관 등을 설치하는 것은 금지.
불가피한 경우에는 반드시 구조설계자의 검토와 동의를 받아야 함.
- 특히 어떠한 경우에도 기둥, 코어벽, 전단벽 등 수직 구조부재 내부에는 우수관 등 비구조재를 삽입할 수 없음.
이상 필로티 건물에서 구조적으로 중요한 부분 5가지를 요약하여 정리했습니다.
아울러 건축구조기술사가 협력하도록 되어있는 구조감리 영역의 의무범위는 하중전이되는 층 이하까지이므로 이후 상부구조에 대해서는 총괄감리자가 구조계산서를 숙지하고 지도관리하여야 합니다.
이때 많은 현장에서 간과하고 놓치기 쉬운 부분이 비구조요소인 파라펫, 외부마감석재, 외부치장벽돌에 대한 것인데요. 이 비구조요소들에 대한 내진안전확인 서류를 미리미리 건축구조기술사에게 의뢰하여 챙겨 놓는 것입니다. 국토교통부령 제688호 「건축물의 구조기준 등에 관한 규칙」 제59조에 따라 불비할 경우에는 지자체에 따라 사용승인(준공)이 반려되거나 연기될 수도 있으니 유념하시기 바랍니다.
. 끝.
'구조상식' 카테고리의 다른 글
| 기존 구조계산서 재검토시 기술자 유의사항 (3) | 2020.04.01 |
|---|---|
| 건식석재(외부치장마감석재) 공사시 감리자 필수확인사항 (8) | 2020.03.30 |
| 화관법 유해화학물질 저장탱크의 내진성능 확인 (1) | 2020.02.15 |
| 건축물 설계시 필요한 지반조사 (4) | 2019.05.31 |
| 외부치장벽돌의 내진설계 안전확인 (10) | 2019.05.23 |
건물지진규모분석연구서비스(주)
e-mail : bmtars@nate.com
IN KOREA
CALL : 1833-9875
FAX : 0505-300-9875
OUT OF KOREA
CALL : 82-1833-9875
FAX : 82-505-300-9875
- Total
- Today
- Yesterday